Standalone villa built from the scratch

Emerald Hills

ROI

91% in 12 months

Realization plan

Initial payment

13,613,580 QAR per plot

Execution period

5 months

Construction

12-14 month, with completion in 2026

Market and competitive advantages

Average cost in the market: QAR 4,200 per square foot on the second line from the golf course.

Uniqueness

The lot is a distress asset and the seller expects to close within 4 weeks of August 15. The lot is surrounded by already built homes, which precludes any further construction in the vicinity.

Location

The villa project is located in the prestigious gated community of Emerald Hills, which is located inside Pearl-Qatar. It is the last community in the area to offer custom builds.

Exclusivity

Total 189 villas. The community is scheduled to be completed in 2026.

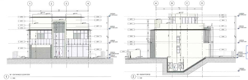
Concept & Design

A clean slate

We know exactly what kind of villa you need to build to achieve the financial result you need.

Project vision

Using the best materials and supplier contacts to achieve quality that outperforms the market, while optimizing the budget.

Learn More

Call me back

We will call back at the same day